David & Tia


The new outdoor learning center marks a major step in expanding Trees For Tomorrow’s educational facilities. This space will enhance learning for students, educators, and the community, supporting our mission to connect people with nature and promote sustainability.
We are grateful to our donors and sponsors for making this vision a reality. Together, we’re creating a space where education and community thrive in harmony with nature.
Stay tuned for construction updates and our grand opening—we can’t wait to share this exciting new chapter with you!
|
|
|
|
|
|
|
|
|
|
|
|
|
|
|
|
|
|
|
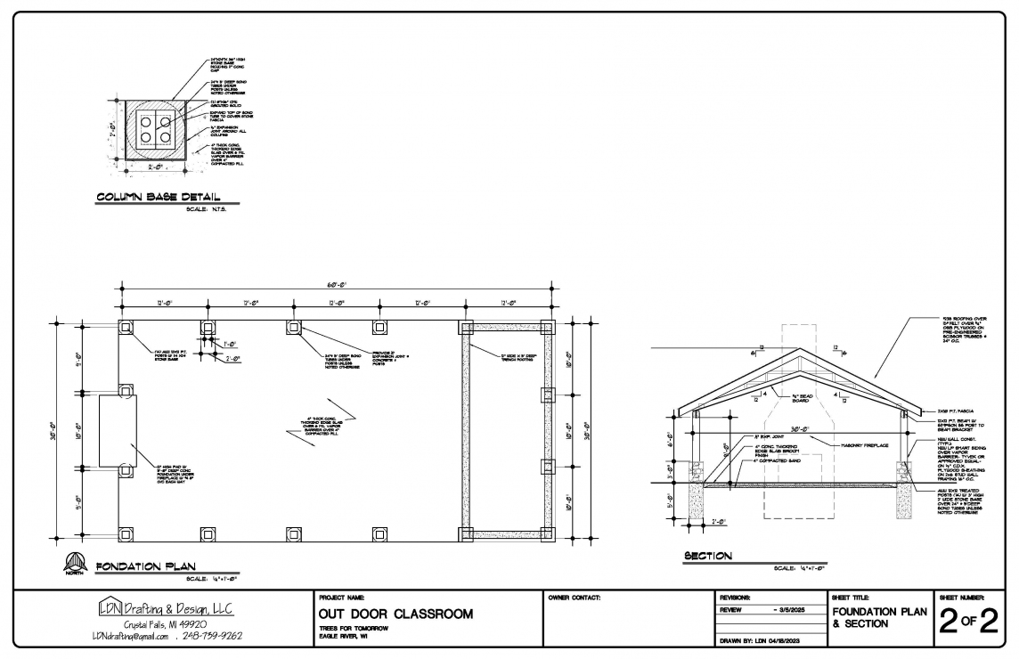
This project is made possible by our generous donors, with major funding from the John & Melissa Besse Foundation. In their honor, we are proud to name the new facility the John & Melissa Besse Outdoor Classroom.
After years of planning and fundraising, Trees For Tomorrow is excited to break ground on a new outdoor learning center in fall 2025, with a grand opening planned for 2026.
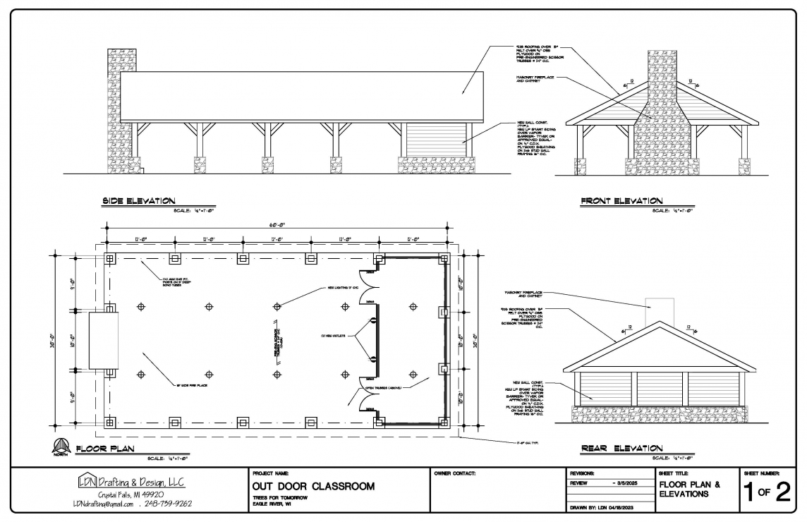
Designed to support our expanding Student Outdoor Learning Experiences (SOLE), this 30’ x 60’ center will provide a versatile learning space with tables, chairs, and technology—all while keeping education rooted in the great outdoors.
Beyond its role as an outdoor learning center, the facility will be available for public rental, making it a perfect venue for weddings, family gatherings, conferences, and more.




This AI-generated and retouched
image is for illustrative purposes only
—content subject to change.




The new outdoor classroom and community pavilion marks a major step in expanding Trees For Tomorrow’s educational facilities. This space will enhance learning for students, educators, and the community, supporting our mission to connect people with nature and promote sustainability.
We are grateful to our donors and sponsors for making this vision a reality. Together, we’re creating a space where education and community thrive in harmony with nature.
Stay tuned for construction updates and our grand opening—we can’t wait to share this exciting new chapter with you!
Click on the image above to view or download a larger image.